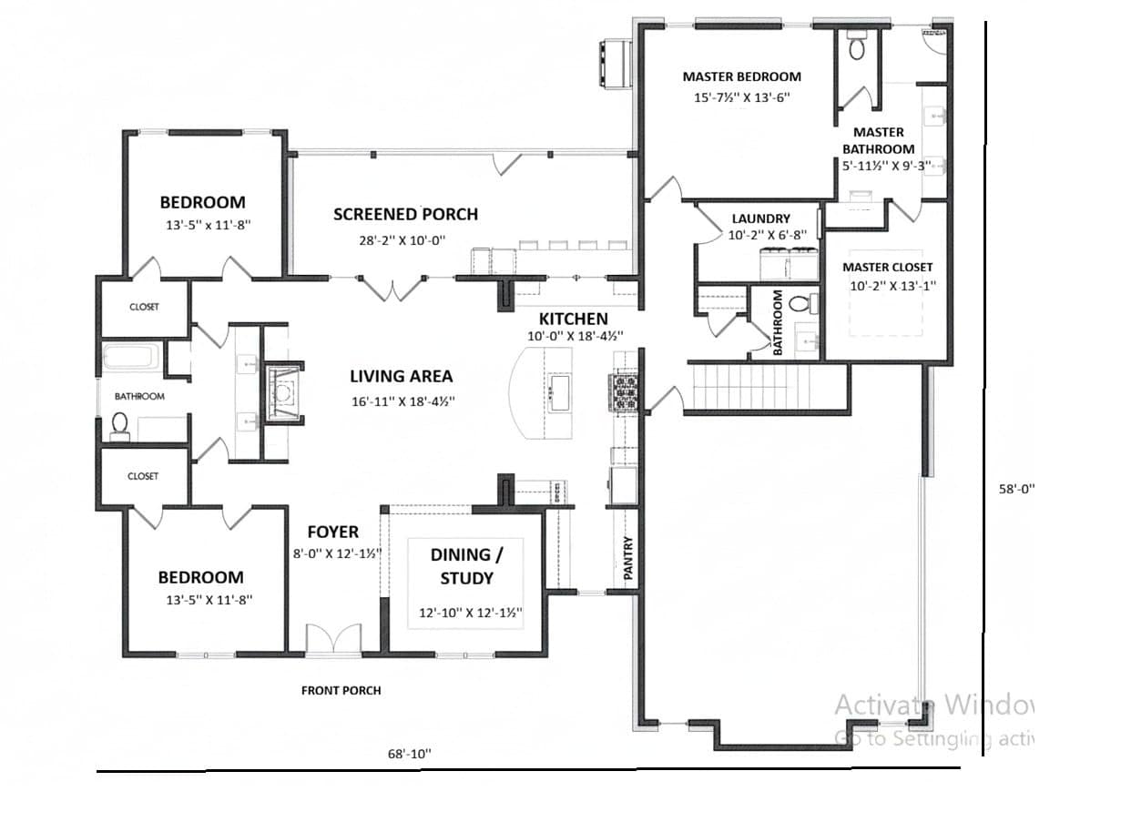
The home features a traditional layout with primary suites and common areas on the main floor:
First Floor: Includes a Master Bedroom with an adjacent Master Bathroom and Master Closet. It also contains a second Bedroom, a Living Room, a Kitchen with a pantry, a Foyer, a Dining/Study area, a Laundry room, and a screened rear porch.
Second Floor: Primarily consists of a Bonus Room and additional Storage space.
Exterior: Features a front porch and a garage